FP apps battery calculation of square/prismatic reservoirs: worksheet calculates: -Raw material weight -Volume -Slab thickness for various materials -Reinforcements and ribs -Dimensions -Stresses -Ribbed shoe -Support feet
FP N3 Applications: Calculation of square/prismatic tanks and reservoirs with a width greater than 2500mm
FP Applications Calculation of square/prismatic tanks and reservoirs with a width greater than 2500mm: worksheet calculates: -Raw material weight -Volume -Slab thickness for various materials -Reinforcements and ribs -Dimensions -Stresses -Ribbed shoe -Support feet
FP N3 Applications: Calculation of square/prismatic tanks and reservoirs with a maximum width of 2500mm
FP Applications Calculation of square/prismatic tanks and reservoirs with a maximum width of 2500mm: Calculation worksheet: -Raw material weight -Volume -Plate thicknesses for various materials -Reinforcements and ribs -Dimensions -Tensions -Ribbed shoe -Support feet
FP N3 Applications: Calculation and Dimensioning of Columns of Two Profiles Interlocked by Trusses
FP Applications Calculation and Dimensioning of Columns of Two Profiles Interlocked by Trusses: Column dimensioning worksheet with lattice bracing on two profiles. Calculates dimensions for truss in laminated and bent angle brackets, reporting dimensions and calculations for column design.
FP N3 Applications: Calculation and Dimensioning of W Profile Columns
FP Applications Calculating and Sizing Profile W Profile Columns: Worksheet for projected column dimensioning with W profile. Calculates the profile used according to load and height, as well as thickness and dimensions of the base plate and its ribs.
FP N3 Applications: Sizing of Cylindrical Tube Columns
FP Applications Cylindrical Tube Column Sizing: Worksheet for sizing column designed with cylindrical tube. Calculates the profile used according to load and height, as well as plate thickness and dimensions, square or round and its ribs.
FP N3 Applications: Sizing of Square Tube Columns
FP Applications Square Tube Column Sizing: Sizing worksheet for square tube projected column. Calculates the profile used according to load and height, as well as thickness and dimensions of the square or round base plate and its ribs.
FP N3 Applications: Column Sizing with Metallic Profiles
FP Applications Column Sizing with Metallic Profiles: Column dimensioning worksheet with metal profiles Inputs: -Height -Braking number -Safety factor -Type of buckling Outputs: -Dimensional information -Mechanical strength information -Validation of applied materials.
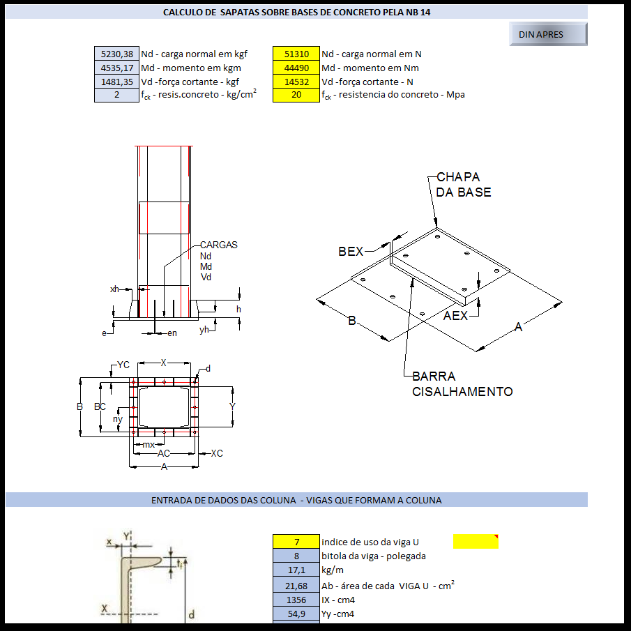
FP N3 Applications: Calculation of shoes on concrete bases standard NB14
Spreadsheet for calculating shoes and anchor bolts. Tickets: -Load Information -Column Beam Information -Shoe Dimensions - Anchor bolts Information Outputs: -Dimensional information -Mechanical strength information -Validation of applied materials.
FP N3 Applications: Conical Rigid Coupling Calculation
Applications FP Conical Rigid Coupling Calculation: Spreadsheet input and output information: Input data: Power CV RPM Service factor Output data: Dimensional Information Bolt torque to achieve required bushing tightening force
FP N3 Applications: Calculation of Rigid Coupling with Conical Bushing
Applications FP Conical Bushing Rigid Coupling Calculation: Spreadsheet input and output information: Input data: Power CV RPM Service factor Output data: Dimensional Information Bolt torque to achieve required bushing tightening force
FP N3 Applications: Single Coupling by Flange with Long Spacer Calculation
FP Applications Single Flange Coupling Calculation with Long Spacer: Single Flange Coupling Calculation Worksheet with Long Spacer with Input Data: -Power CV -RPM -Service factor Output data: -Dimensional information -Diameter of bolt with tension -Allowable -Torque on bolts to achieve required force for coupling -Confirmation of spacer section - torque tension
FP N3 Applications: Current Coupling Calculation Worksheet
FP Applications Worksheet for Current Coupling Calculation: Spreadsheet input and output information: Input data: Ø gear roller Power CV RPM Material safety Output data: Dimensional Information Gear Teeth Geometry
FP N3 Applications: Worksheet for Coupling with Elastic Pin (Seeger)
FP Applications Spreadsheet for Coupling Calculation with Elastic Pin (Seeger): Spreadsheet input and output information: Input data: Power CV RPM Service factor Output data: Dimensional information Bolt diameter with allowable stress
FP N3 Applications: Simple Coupling by Flange Calculation
FP Applications Calculation of Simple Coupling by Flange: Spreadsheet input and output information: Input data: Power CV RPM Service factor Output data: Dimensional Information Bolt Diameter with Allowable Stress Torque on Bolts to Achieve Required Force for Coupling
FP N3 Applications: Profile Calculation Worksheet, beams, handrails and walkways
FP Worksheet Applications for Calculating Profiles, beams, handrails and walkways: Features calculations and functions for: Calculation of sheets and profiles for guardrails and handrails Calculation of calendering of tubes Calculation for construction of truncated cone Calculation of tubes and sheets flooring for handrails and walkways Development of arches and circular crown
